Noida is emerging as the fastest-growing satellite city for the residential sector. The city represents excellent investment and growth opportunities for prospective homebuyers and investors looking to capitalize on the money. The infrastructural and social development, excellent connectivity, reputed educational institutes, and the excellent planning of the Noida city give it an edge over the others as the best residential option.
Looking at the lucrative opportunity, many reputed builders have developed excellent residential projects in Noida, offering state-of-the-art amenities and modern townships to cater to high-profile clients' demands. One of the respected builders, Eldeco is bringing Eldeco 150 Noida premium residential project to offer a resort-like lifestyle amidst refreshing greens.
Eldeco Live By The Greens Sector 150 Noida comes with some top-notch amenities. The notable highlights are the outstanding sports facilities, including a vast cricket field in the middle of the complex. You can also enjoy a selection of other sports facilities, including a round of badminton in the comforts of this indoor court, go for a leucine game of lawn tennis or casually dribble and throw a hoop at the half basketball court. All these facilities are in one destination.
Eldeco Live By The Greens offers 2 & 3 BHK premium apartments to offer the essence of luxury living blending with home comfort. At present, the Eldeco apartments are an architectural masterpiece that offers a refined living experience that goes beyond and above just walls.
Eldeco Live by The Greens RERA (UPRERAprj15172) is a certified project. As the theme of the project, the residential complex offers you the opportunity to enjoy, relax or chill surrounded by the greens in the lap of nature. Some premium leisure amenities offered at the township are:
Poolside cabanas for you to chat, read a book, or work on your laptop
Two swimming pools to enjoy a refreshing swim a relax on the loungers
Café to grab a bite at the go
Eldeco projects in Noida enjoy a strategic location that will keep you connected to Delhi and the rest of the NCR. Here are the significant location advantages to keep you at the centre of everything.
Noida-Greater Noida Expressway connecting Noida and FNG Expressway
Well-connected by 8-lane DND Flyway that connects Delhi to Noida
In proximity to the IT Hub, Multiplex, Shopping Complex, International School
Proposed Jewar Airport is located just 20 minutes away
When you choose to book Eldeco Live by The Greens 2 Bhk or 3 Bhk Apartments, the following are the amenities you can enjoy right within the premises.
Cricket Academy
Lawn Tennis
Half Basketball Court
Climbing Wall
Chess Paving Features
Tot-lot Area
World-class Sports Facilities
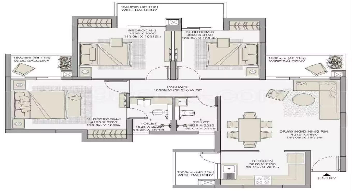
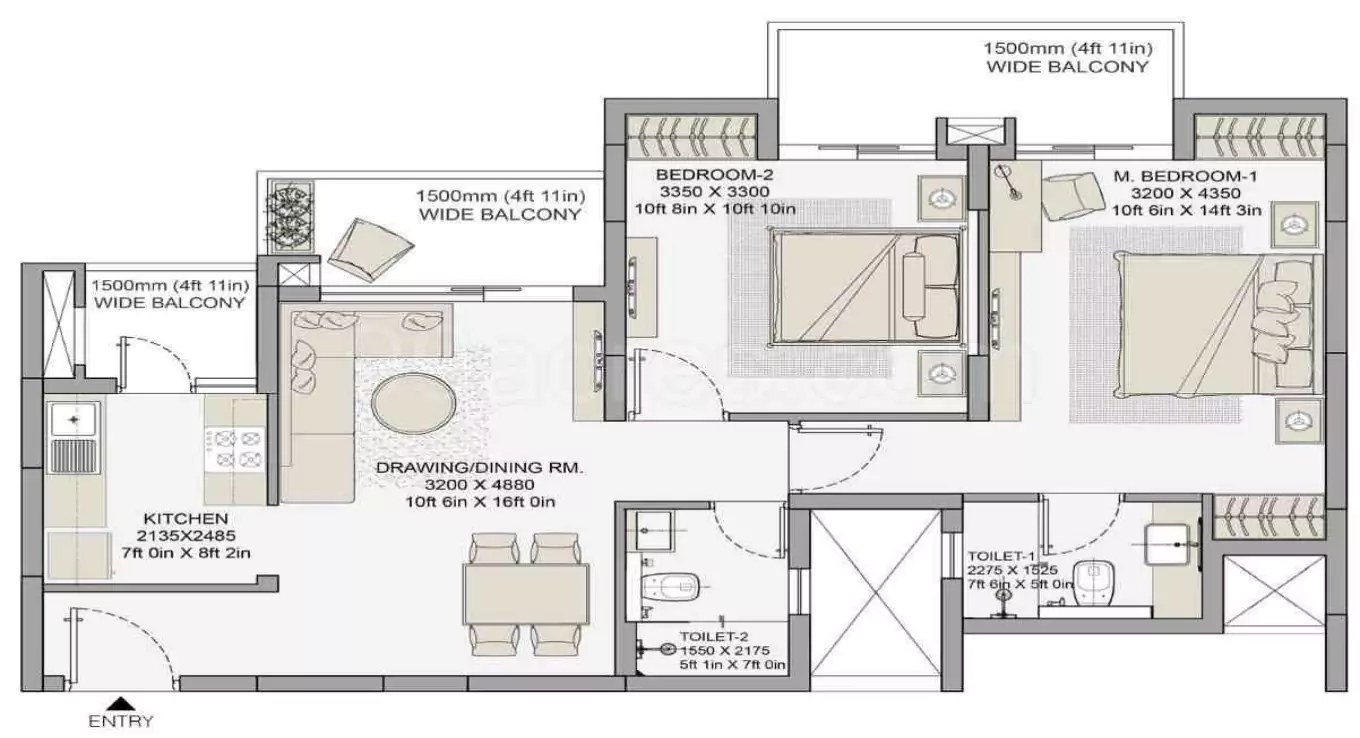
Eldeco apartments Noida with 2 & 3 BHK apartments fall in the size range of 1137 square feet and floor plan to 1404 sq ft. The trusted Eldeco Group boasts luxury projects in Indian cities; however, Eldeco Live by the Greens is their dream project. So if you are looking for Eldeco Live by the Greens price list, floor plan, booking amount, contact number, Eldeco Live by the greens 2 & 3 BHK price & Eldeco Greens reviews & brochure details, our experts are available to answer all your queries to get you the best available deal.
The affordable price of the units has made Eldeco Greens Apartments for Sale in high demand. Once the Eldeco Live by the Greens possession starts, there will be a further increase in its demand.
Eldeco Live By The Greens (Phase I) | UPRERAPRJ15172
*T&C Apply.
24X7 Water Supply
Amphitheater
Badminton Court
Bank & ATM
Banquet Hall
Basketball Courts
ACE Group, a renowned real estate developer in Noida, creates unique spaces for residential and commercial purposes. Established in 2010 by Ajay Choudhary, ACE Group has become a multi-crore conglomerate that delivers high-end projects for all lifestyles. The group strives to fulfill every need of home-buyers and has received recognition for its quality construction and affordable homes. ACE Group continues to excel in the industry, winning awards for on-time delivery, innovation, and design excellence.